农业测报站
Agriculture Research Center

农业测报站
Agriculture Research Center

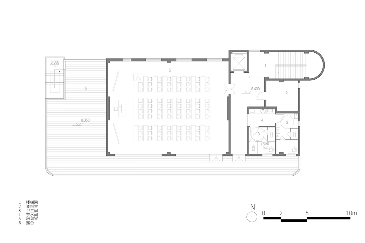
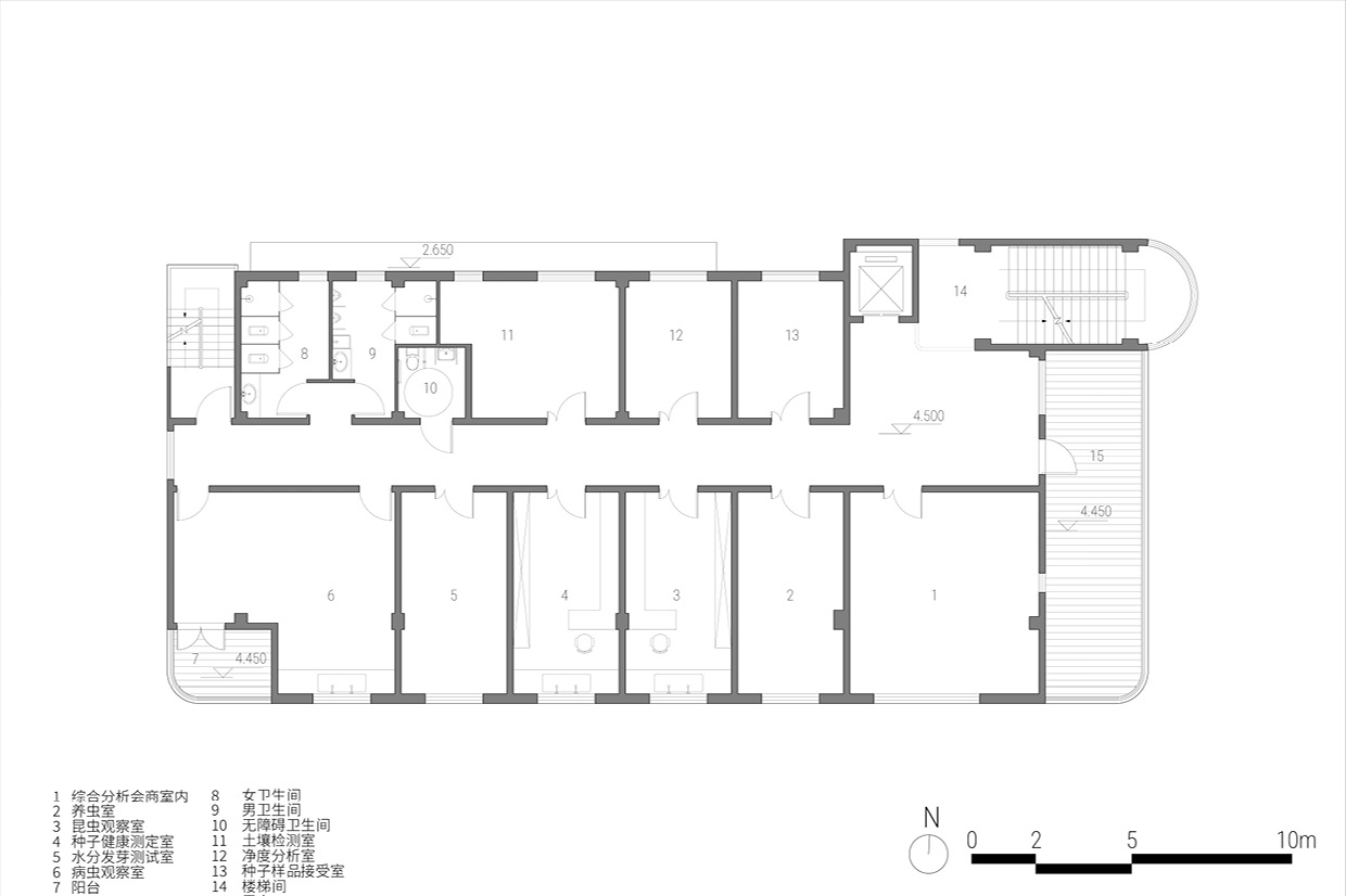
本项目是一座位于稻田旁的农业实验楼,主要为农业研究人员提供种子储存、土壤与稻田实验、农作培训及展览等综合功能。在有限的用地与建筑面积条件下,通过体量的错动形成公共空间与露台,提升了使用的灵活性与舒适度。三层设置了完整的培训会议室,并配有宽阔露台,便于观测稻田、培训休息与室外教学。建筑外立面采用白色真石漆与红砖结合,在控制成本的同时,成为乡村环境中一座既融合又醒目的实验小楼。

This project is an agricultural experimental building located beside paddy fields, designed to provide comprehensive functions including seed storage, soil and paddy field experiments, agricultural training, and exhibitions for researchers. Within the limited site area and floor space, the offsetting of volumes creates public spaces and terraces, enhancing flexibility and comfort in use. The third floor houses a fully equipped training conference room accompanied by a spacious terrace, ideal for observing the fields, training breaks, and outdoor teaching. The building façade combines white textured paint with red bricks, achieving a cost-effective solution while standing as a distinctive yet harmonious experimental structure in the rural setting.

项目地点(Location):
嘉兴 Jiaxing
项目时间(Period):
2023-2025
项目面积(Area):
998 m²
项目状态(Status):
已建成(Completed)
Date:
Category: